CONCEALED INTERIOR

Ann Arbor, MI (2024, unbuilt)
Project Size: 700 SF

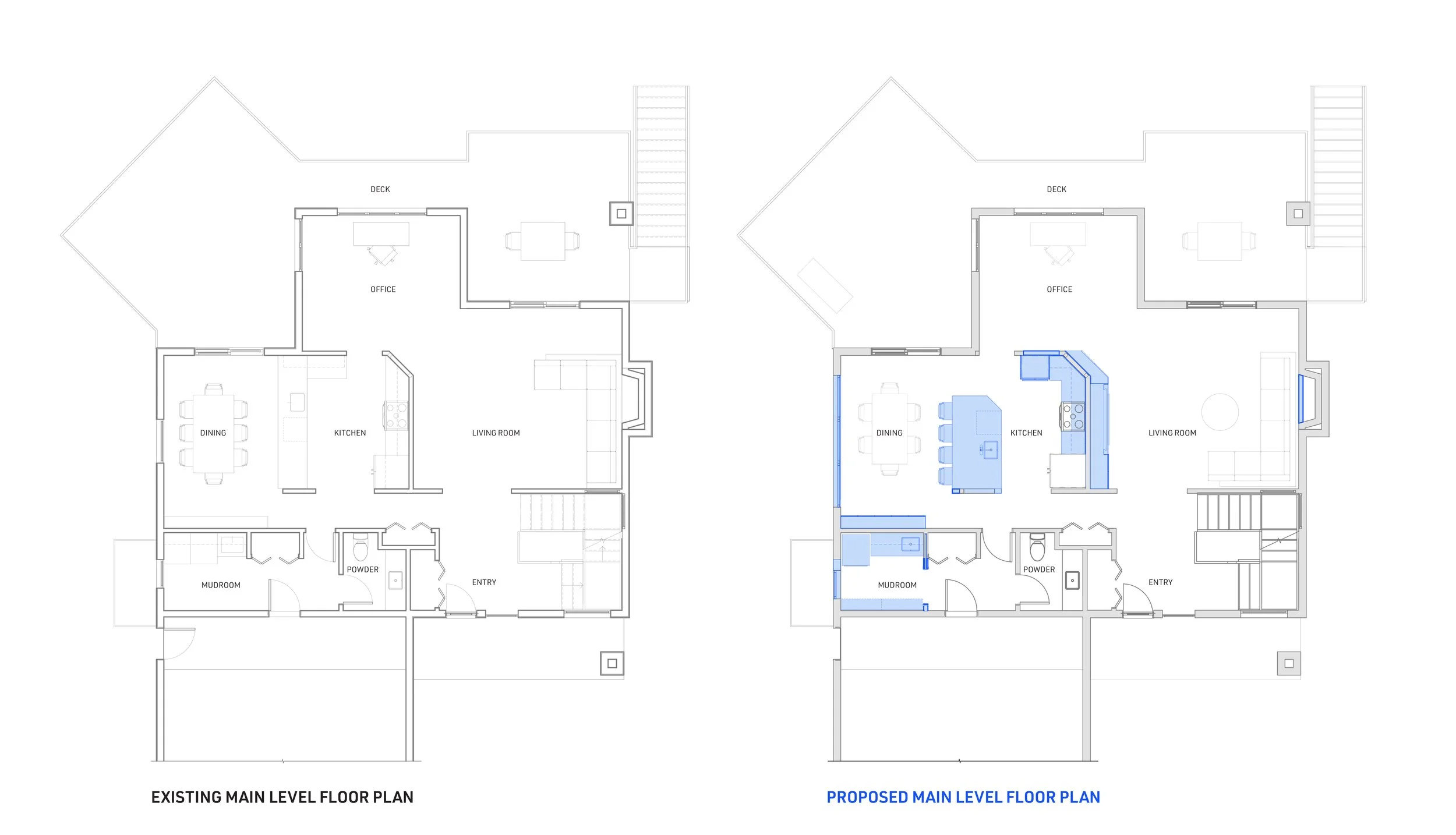
Concealed Interior is a design for a renovation that reworks the first and second floors of an existing single-family home, upgrading the kitchen, dining area, and primary suite through a series of precise, space-conscious interventions. Rather than reprogramming the house wholesale, the project focuses on using space more efficiently—improving natural light, increasing storage, and cultivating a warmer interior atmosphere through material continuity and daylight.

On the main level, primary program locations are largely retained to minimize utility relocation, while the kitchen and dining spaces are subtly reshaped to improve circulation and everyday use. A larger eat-in island becomes the organizational center of the plan, supported by new wood casework that runs along the living room wall. This cabinetry carefully follows the home’s original angled geometry, maintaining clear visual relationships between rooms while providing concealed storage that allows daily clutter to be tucked away. Two new dining room windows further enhance daylight penetration, drawing sunlight deeper into the kitchen.

Upstairs, the primary suite is reconfigured to reclaim underutilized space for an expanded bathroom and walk-in closet. This redistribution significantly increases storage and functionality while maintaining a generous bedroom footprint. A wood feature wall and integrated electric fireplace introduce warmth and texture, reinforcing the suite as a calm, restorative retreat.

Through careful calibration rather than dramatic transformation, the project demonstrates how modest architectural adjustments — rooted in light, material, and spatial efficiency — can meaningfully elevate the experience of an existing home.

This project was completed in collaboration with:

Kasey Vliet - Principal in Charge
Ashley Hsu - Project Architect